Link Copied
$--,---,---
420
  • Key Facts
  • Description
  • Rooms
  • Map

Key Facts

Type Single Family Residence
Levels Residential
Size 2072 sqft
Garage Yes
Taxes 
Days Active 98
Lot Size 
Approx. Age 2025
Avg. Price Per Sqft $144
MLS® Number 25028720

Property Address: 

Average square foot calculated using Size range provided by listing agent.

Description

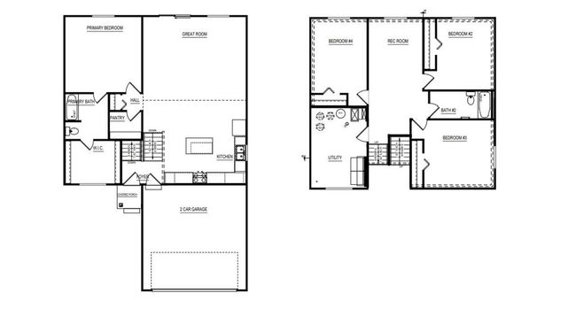
Move-In Ready & Minutes from Gull Lake! This stylish new construction home in Gilmore Farms (Gull Lake Schools) offers over 2, 000 sq. Ft. Of finished living space with an open-concept, raised ranch design—perfect for today's modern lifestyle. The upper level features a bright great room with vaulted ceilings, a stunning kitchen with white cabinets, quartz counters, tile backsplash, and a 48'' island, plus access to a 10x10 deck. The primary suite includes a private bath and huge walk-in closet with natural light. The finished lower level adds a rec room, 3 bedrooms with daylight windows, and a full bath—ideal for guests, WFH setups, or gaming zones. Built with RESNET Energy Smart construction, saving you $800+/year, and comes with a 10-year structural warranty. All located just minutes from Gull Lake, parks, hiking, water sports, and everything Richland has to offer! Bonus; Over 300 sq ft larger and 30 years newer than similarly priced homes in the area. Landscape, irrigation and hydroseed included.Show Description
MLS® Number25028720
Laundry LevelIn Basement
Central VacNo
FireplaceNo
Acreage0.18
Exterior
GarageYes
Approx. Age2025
BasementDaylight, Full
DrivewayGarage Faces Front, Garage Door Opener, Attached
Garage Spaces
HeatForced Air
A/CCentral Air, SEER 13 or Greater
Heating Fuel

Extras

Rooms

Show Details
Bedroom 3:Lower11 × 12 ft
Other:Lower12 × 9 ft
Bedroom 4:Lower13 × 9 ft
Great Room:Main14 × 19 ft
Laundry:LowerNot available
Bathroom 2:Lower5 × 11 ft
Other:Main15 × 9 ft
Kitchen:Main16 × 15 ft
Bedroom 2:Lower12 × 9 ft
Master Bedroom:Main14 × 14 ft
Master Bathroom:Main8 × 5 ft

Similar Listings

Like what you see?

Complete the form and we'll be in touch. No login necessary.

Add a Comment

Get notified of price or status changes by saving this listing